招租公告
受委托,我公司将于2025年7月14日上午9:30起分场次在南充市嘉陵区企业服务中心5楼会议室对南湖街道射洪庙市场(原名:南山府邸农贸市场)15间商铺和36个市场摊位进行公开招租。现就有关事项公告如下:
1、年租金参考价:商铺9000-13000元/个,摊位3000-4000元/个。(详见“南湖街道射洪庙市场招租商铺和摊位清单”)。
2、租赁期限:租期1年,期满后无违法违约以及未被市场管理方处罚的可续签。
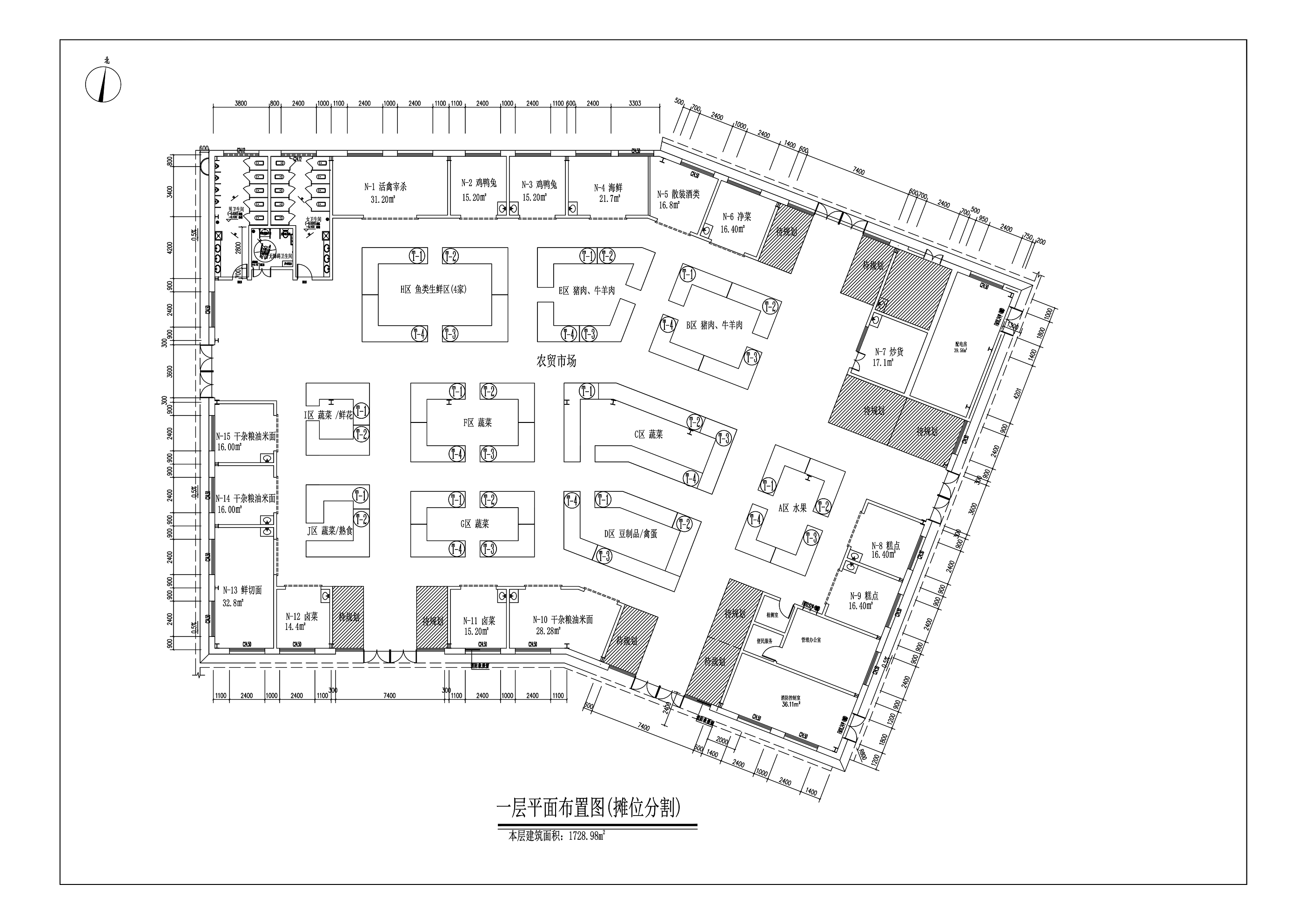
3、竞租状态及展示:标的均按市场交付现状招租,商铺和市场摊位分布以现场编号为准,即日起标的原址现场公开展示。(见市场管理方提供的农贸市场“一层平面布置图(摊位分割)”平面图)。
4、风险提示:竞租人应充分根据自身实力和标的状况合理估算自己的心理价位、考虑经营风险,理性参与竞价。竞价成功后,竞得者自行承担租期内各种风险,不得以竞租成交价过高或经营困难向市场管理方和出租方提出不合理要求。
5、竞租人资格:凡具有完全民事行为能力的自然人、法人或其他组织均可参与竞租。
6、报名时间地址:公告之日起至7月12日17时前执有效证件和竞租保证金缴款凭证到南充市顺庆区金泉路253号西河明珠12层5号我司办理竞租报名手续。
7、竞租保证金:商铺、摊位竞租保证金均为5000元/个,竞租成功其竞租保证金直接转为成交标的首付款,未竞得标的其竞租保证金5个工作日内无息全额退还,但竞租人违约其竞租保证金概不退还。竞租人报名时须确定其竞租商铺和摊位的区位和数量,并按拟竞租数量足额缴纳竞租保证金,竞租人名称必须与缴款人名称一致。竞租保证金缴款账户如下:
收款人名称:南充金桥拍卖有限公司
账号:4729 0120 0000 07062
开户行:南充农村商业银行股份有限公司
8、竞租保证金适用范围:竞租人可在其缴纳的保证金额度范围内竞租所选“可经营类别”内的任一商铺或摊位,但不得跨类别参与竞租,超过所选类别和保证金额度范围竞租按违约处理,其所竞得标的收回重新招租,且其缴纳的竞租保证金概作违约金不予退还。
9、商铺及摊位押金:竞得人签订租赁合同时须按商铺押金5000元/个、市场摊位押金3000元/个一次性向市场管理方或出租方缴纳。
10、市场管理:竞租成交后,所有商铺和摊位必须遵守市场统一管理,各标的须严格按市场规划类别进行经营,不得超范围经营,竞得人自行承担竞得标的水电和市场管理费,租金不含上述费用。
11、竞租更多事项及详情,请查阅本公司官网、微信公众号、小程序(竞拍租售)和到本公司及相关单位咨询。
12、竞租咨询电话:2227092、18160181116、18113930766
13、市场管理咨询电话:18800836860
南充金桥拍卖有限公司
2025年7月7日
1、射洪庙市场商铺及摊位招租清单

2、市场商铺及摊位分布平面图
